1er PRIX NATIONAL / EXTENSIONS - SURELEVATION
Salon Maison Bois Angers 2009










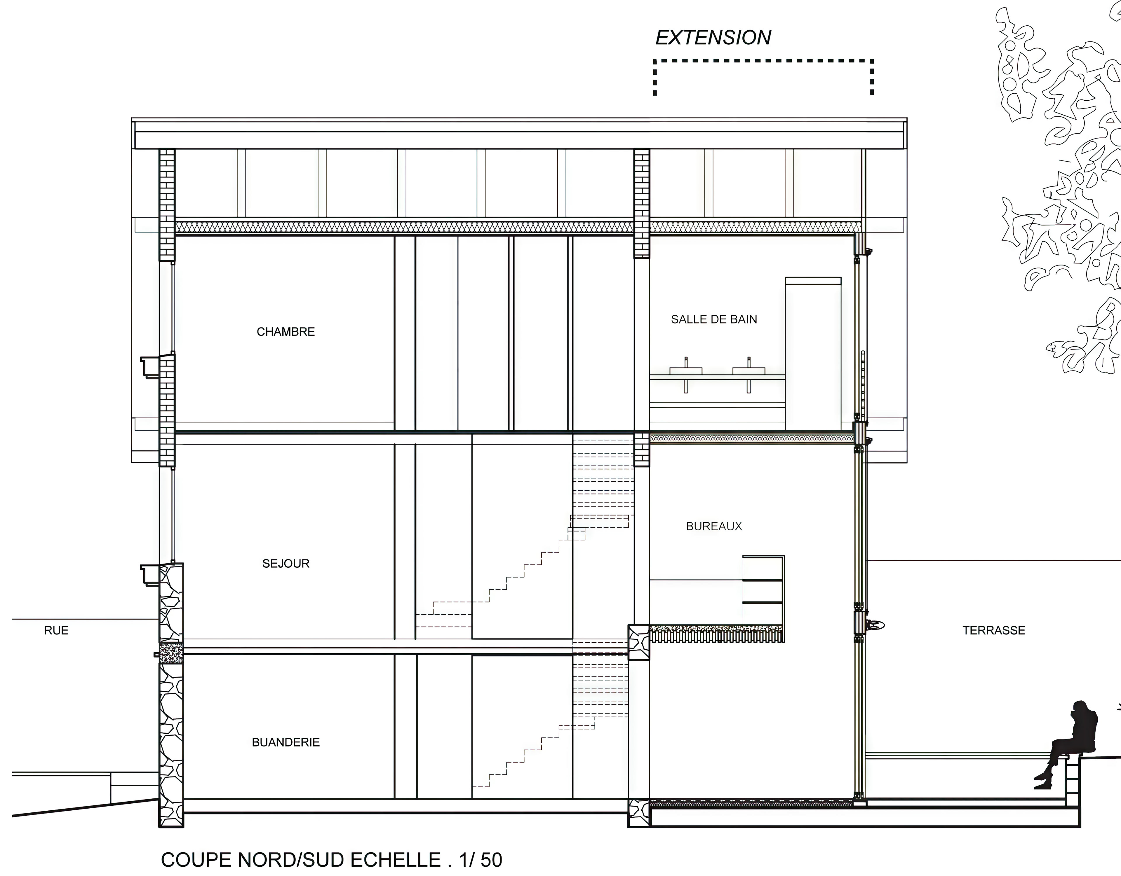
Ce projet d’extension vient greffer une écriture contemporaine sur un pavillon en meulière des années 1930. Pour être en écho avec l’architecture existante, le projet se construit autour de l’idée du recto verso : le recto conserve la lecture d’une façade traditionnelle côté rue, alors que le verso projette la maison sur son jardin à travers une façade vitrée toute hauteur sur trois niveaux.
La maison existante, composée de multiples petites pièces, a été entièrement réorganisée pour créer un espace de vie sur deux niveaux ouverts sur le jardin comprenant : entrée, cuisine, salle à manger, séjour, salon de musique et bureau.
Un meuble escalier distribue les trois niveaux de la maison et optimise les espaces de rangements.
L’extension de 60 m² est réalisée en ossature bois pour être en accord avec son environnement arboré, mais également pour répondre aux contraintes d’un site peu accessible.
La maison existante, composée de multiples petites pièces, a été entièrement réorganisée pour créer un espace de vie sur deux niveaux ouverts sur le jardin comprenant : entrée, cuisine, salle à manger, séjour, salon de musique et bureau.
Un meuble escalier distribue les trois niveaux de la maison et optimise les espaces de rangements.
L’extension de 60 m² est réalisée en ossature bois pour être en accord avec son environnement arboré, mais également pour répondre aux contraintes d’un site peu accessible.